Hello,
My name is Harvir Panesar. I am a graduate of the Architectural and Building Technology program at BCIT. This program has allowed me to broaden my knowledge and skills needed for this industry. I am very passionate about construction and building design. Combining my hands on experience with the technical training I received, it has helped me succeed in this program.
Check out my recent work below! ⇩
Portfolio
-
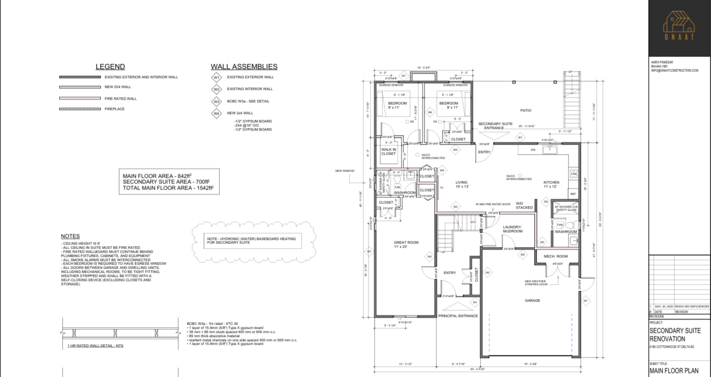
Residential Plans
-
BCIT Indigenous House
-
Single Family Residence - Ladner
-
Front Elevation
-
Wall Framing - Revelstoke
-
Stair Framing - Kelowna
-
Wall Framing - Revelstoke
-
Radius Wall Framing - Hotel Penticton
-
Laneway House - Facade
-
Laneway House - Kitchen
-
Laneway House - Plans
-
4700 Dunbar St, Vancouver
-
4700 Dunbar St, Vancouver
-
Oshawa, Ontario Basement - Floor Plan (in progress)
-
Proposed Residence Cloverdale - Elevation
-
Proposed Residence Cloverdale - Roof Detail
-
Roof Geometry
-
Ladner - Door Install
-
West Vancouver - Deck Build
-
West Vancouver - Deck Build
-
Ladner - Cedar Fence
-
Ladner - Patio
-
Concept Sketch - Apartment